PROFESSOR: David Fox
SEMESTER: Spring 2018 ​​​​​​​
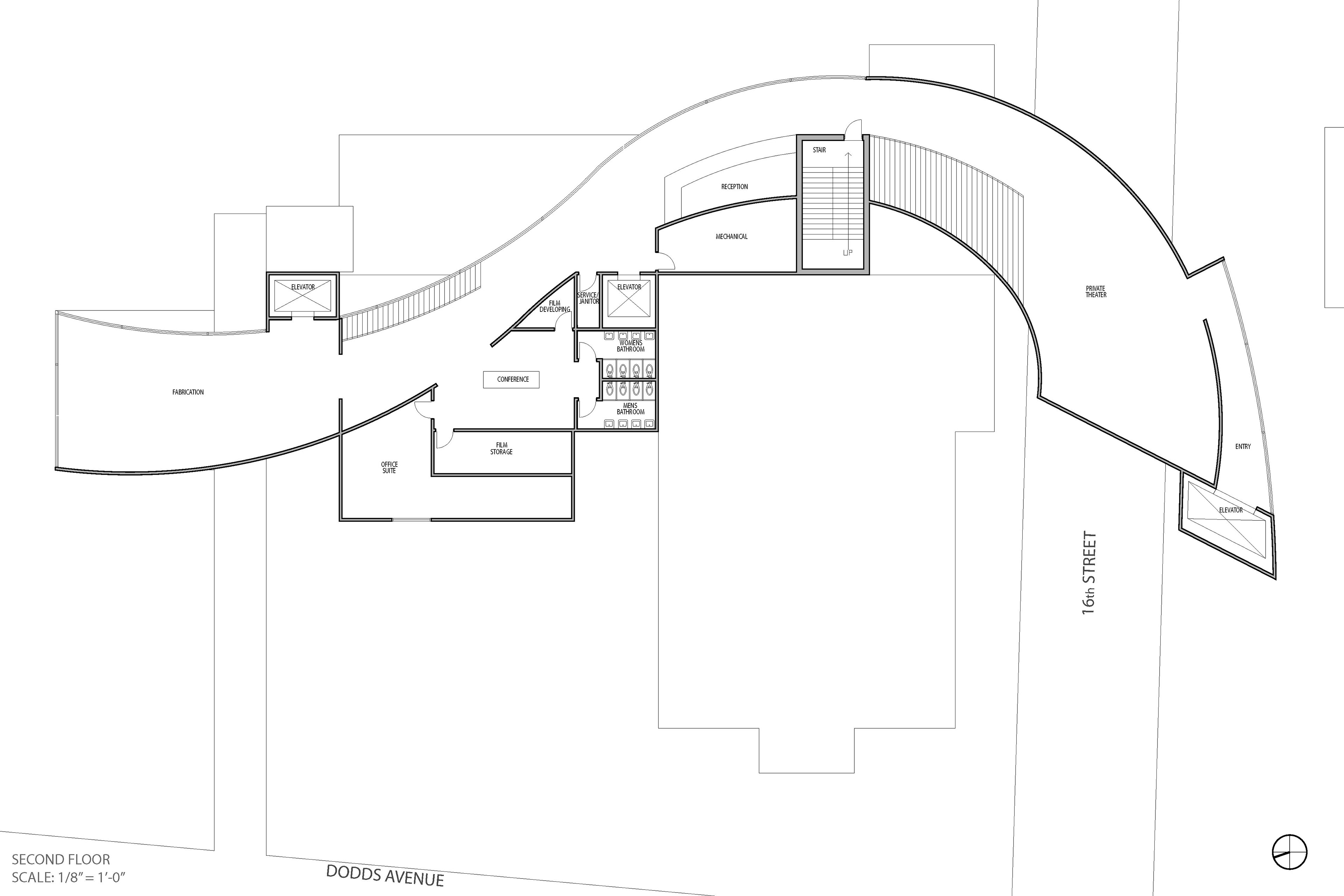
The building uses a long curve which cantilevers on both the east and west sides so that outside inhabitants can interact with the under spaces. The curve is meant to be long continuous flowing inhabitable space with plenty of glazing for sunlight and visibility. The high ceiling is meant to erupt the interior space and make the narrow stretch feel larger and more spacious. Program of the structure consists of both office and student functions. The hope is that the entire structure will create a community both within the structure as well as its surrounding atmosphere.  The structure comes equipped with office rooms, viewing spaces, student studios, an occupiable patio space and multipurpose classrooms which can be remodeled to fit the needs of the user.  The structure is meant to be a rent-able space for the entire Chattanooga community to be able to occupy and connect with each other for any event or communal celebration.

You may also like

Back to Top